お問い合わせ

電話番号:0120-053-541

No.90064465-202542

グランデュオ神山町

グランデュオ神山町の外観写真
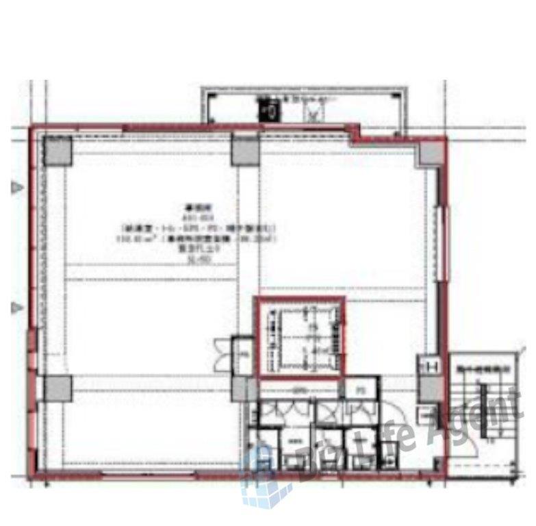
グランデュオ神山町の平面図
グランデュオ神山町の外観写真
グランデュオ神山町の平面図

※賃料、共益費、その他の費用には別途消費税がかかります。

※成約に至った場合、仲介コンサルティング料として賃料の1ヵ月分を申し受けます。

※現況が異なる場合は現況を優先します。

物件情報

物件名グランデュオ神山町
所在地東京都渋谷区神山町7-12
最寄り駅 代々木公園駅 徒歩8分
竣工2020年08月
規模地下1階~地上6階建
基準階面積33.45坪
耐震新耐震基準
空調個別空調
駐車場無し
エレベーター1基
  • 天井高2600mm以上
  • OAフロア
  • 個別空調

グランデュオ神山町のフロア情報(1件)

階数坪数タイプ賃料共益費敷金入居日お気に入り
3階 33.45坪

相談

賃料に含む 賃料の4ヶ月分 空き予定
(2026/1/1)