非掲載情報および、
新規募集情報を希望の企業様
この物件の空室状況は
別途お問い合わせください
No.90062820-315530
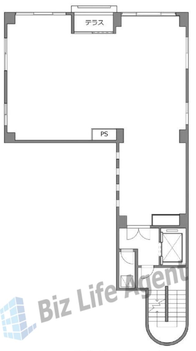
広尾KKビル
| 物件名 | 広尾KKビル |
|---|---|
| 所在地 | 東京都渋谷区広尾5-14-2 |
| 最寄り駅 |
広尾駅 徒歩4分 |
| 竣工 | 1989年01月 |
| 規模 | 地上0階~地上6階建 |
| 基準階面積 | 調査中 |
| 耐震 | 新耐震基準 |
| 空調 | - |
| 駐車場 | 無し |
| エレベーター | - |
この物件の空室状況は
別途お問い合わせください
No.90062820-315530
| 物件名 | 広尾KKビル |
|---|---|
| 所在地 | 東京都渋谷区広尾5-14-2 |
| 最寄り駅 |
広尾駅 徒歩4分 |
| 竣工 | 1989年01月 |
| 規模 | 地上0階~地上6階建 |
| 基準階面積 | 調査中 |
| 耐震 | 新耐震基準 |
| 空調 | - |
| 駐車場 | 無し |
| エレベーター | - |