No.90048236-165624
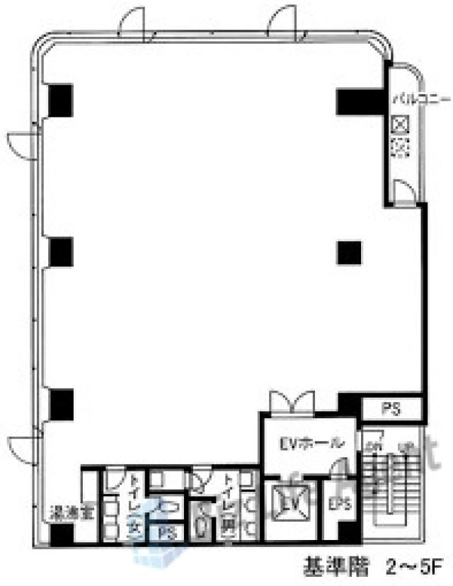
青山SIビル/4階/64.07坪(211.59m²)
- 月額賃料: 相談
- 月額共益費:相談
- 敷金:賃料の12ヶ月分
- 入居可能日:空き予定(2026/7/1)
| 物件名 | 青山SIビル |
|---|---|
| 所在地 | 東京都渋谷区渋谷1-1-11 |
| 最寄り駅 |
渋谷駅 徒歩8分 |
| 竣工 | 1992年01月 |
| 規模 | 地上0階~地上7階建 |
| 基準階面積 | 64.07坪 |
| 耐震 | 新耐震基準 |
| 空調 | 個別空調 |
| 駐車場 | |
| エレベーター | 1基 |
No.90048236-165624
| 物件名 | 青山SIビル |
|---|---|
| 所在地 | 東京都渋谷区渋谷1-1-11 |
| 最寄り駅 |
渋谷駅 徒歩8分 |
| 竣工 | 1992年01月 |
| 規模 | 地上0階~地上7階建 |
| 基準階面積 | 64.07坪 |
| 耐震 | 新耐震基準 |
| 空調 | 個別空調 |
| 駐車場 | |
| エレベーター | 1基 |