No.90022307-348800
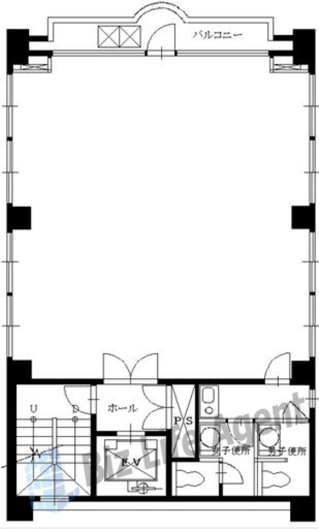
ハーモニックプレイスビル/3階/27.43坪(90.59m²)
- 月額賃料: 521,170円(19,000円/坪)
- 月額共益費:相談
- 敷金:3,127,020円
(賃料6ヶ月分) - 入居可能日:即入居
| 物件名 | ハーモニックプレイスビル |
|---|---|
| 所在地 | 東京都渋谷区恵比寿南2-7-1 |
| 最寄り駅 |
恵比寿駅 徒歩5分 |
| 竣工 | 1992年07月 |
| 規模 | 地上0階~地上4階建 |
| 基準階面積 | 27.43坪 |
| 耐震 | 新耐震基準 |
| 空調 | 個別空調 |
| 駐車場 | |
| エレベーター | 1基 |
ハーモニックプレイスビルのフロア情報(1件)
| 階数 | 坪数 | タイプ | 賃料 | 共益費 | 敷金 | 入居日 | お気に入り |
|---|---|---|---|---|---|---|---|
| 3階 | 27.43坪 | ![]() |
521,170円 |
賃料に含む | 3,127,020円 (賃料6ヶ月分) |
即入居 |












