No.90000824-336165
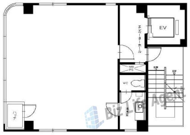
お茶の水サニービル/8階/38.83坪(128.24m²)
- 月額賃料: 427,130円(11,000円/坪)
- 月額共益費:相談
- 敷金:相談
- 入居可能日:即入居
| 物件名 | お茶の水サニービル |
|---|---|
| 所在地 | 東京都文京区本郷3-2-7 |
| 最寄り駅 |
御茶ノ水駅 徒歩7分 |
| 竣工 | 1991年12月 |
| 規模 | 地上0階~地上9階建 |
| 基準階面積 | 18.93坪 |
| 耐震 | 新耐震基準 |
| 空調 | 個別空調 |
| 駐車場 | 無し |
| エレベーター | 1基 |
お茶の水サニービルのフロア情報(1件)
| 階数 | 坪数 | タイプ | 賃料 | 共益費 | 敷金 | 入居日 | お気に入り |
|---|---|---|---|---|---|---|---|
| 8階 | 38.83坪 | ![]() |
427,130円 |
97,075円 (2,500円/坪) |
相談 | 即入居 |












