- 名古屋の賃貸オフィス探しならビルネクスト
- 居抜き・セットアップ
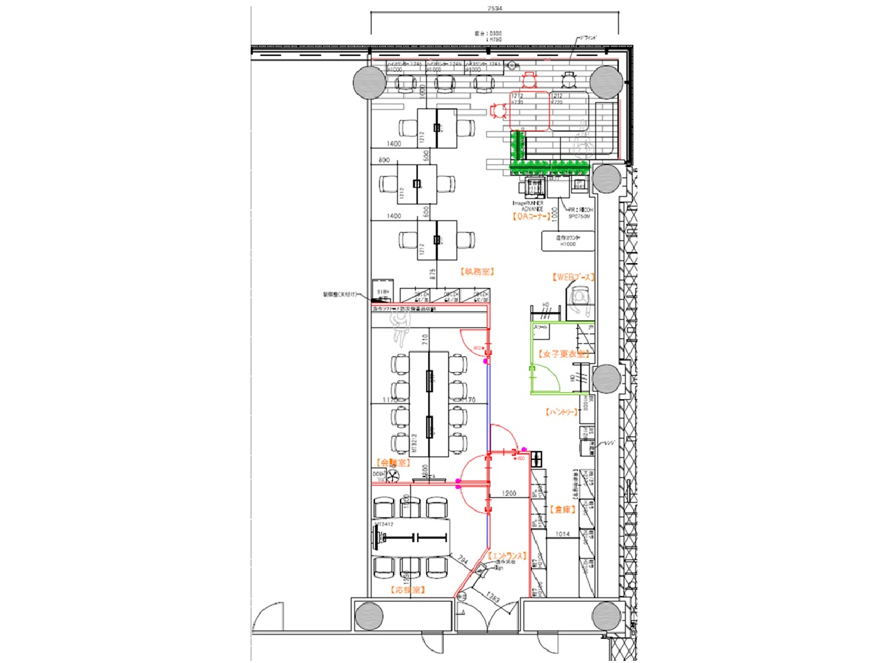
- No.433-N 名古屋市西区【事務所】
No.433-N名古屋市西区【事務所】
- この物件についてお問い合わせ
- 住所:名古屋市西区
- 最寄り駅:名古屋駅 徒歩6分
- 推奨人数:9~13名
















物件情報
| 物件タイプ | 事務所 |
|---|---|
| 入居可能時期 | 2026年5月 |
| 広さ(坪数) | 35~40坪 |
| 貸室内エントランス | あり |
| 会議室・その他 | 8名用会議室 6名用会議室 リフレッシュスペース |
















| 物件タイプ | 事務所 |
|---|---|
| 入居可能時期 | 2026年5月 |
| 広さ(坪数) | 35~40坪 |
| 貸室内エントランス | あり |
| 会議室・その他 | 8名用会議室 6名用会議室 リフレッシュスペース |
特徴
名古屋駅エリアの貴重な居抜き物件の紹介です。完全個室の会議室を2室完備しており、会議やミーティングなどでご利用いただけます。その他倉庫、更衣室として使えるスペースもございます。エントランスは白を基調とした清潔感のある内装となりますので対外的なイメージも抜群です。ハイレベルな内装の為、お早めにお問合せ下さい。